Ontspannen wonen in het weidse landschap
De villa is modern, opvallend. En tóch gaat de schuurwoning op in het landschap. Als je het erf op rijdt, zie je het gebouw opdoemen. De eenvoudige vorm, het vergrijzende hout, het glas dat alles licht maakt. Je bent thuis. En het voelt als vakantie.
Jacqueline over haar woning
‘Toen we dit kavel vonden, verdiepten we ons eerst in de bouwstijlen die we mooi vonden. Zo wisten we eigenlijk al heel goed wat we wilden, toen we Jeroen spraken. Modern minimalistisch, graag. Een strak ontwerp zonder poespas. Dat het precies geworden is zoals we voor ogen hadden, daar ben ik onnoemelijk blij mee.’ 
‘Zelfs binnen voelt als buiten, met deze hoeveelheid licht. En het uitzicht! Binnen en buiten lopen in elkaar over, waardoor we optimaal van het weidse uitzicht kunnen genieten. Laatst werd hier in de wei een veulen geboren. Heel bijzonder. Ik kan écht zeggen dat ik verliefd ben op dit huis.’
Dak geheel bedekt met zonnepanelen
Heel precies luisteren naar de wens van de klant
‘Waarom we voor Jeroen kozen? Omdat hij de enige architect was die naar ons luisterde. Onze woonwensen zijn heel specifiek. En dan is het belangrijk dat je elkaar begrijpt. Dat je er vertrouwen in hebt dat de samenwerking een succes wordt. Met Jeroen is er gewoon die klik. En toen we vertelden dat we energieneutraal wilden bouwen, was hij direct enthousiast.’
Interieur van staal en schoonbeton. Aluminium kozijnen
Ruwbouw = afbouw
Dit is niet het eerste huis dat in deze bouwmethode is gerealiseerd. Jeroen ontwikkelde deze werkwijze een aantal jaren geleden. Het huis van Sander en Ines was het eerste. Jeroen gebruikt betonnen breedplaten. Niet voor de vloeren, maar voor de buitenschil van de woning: de muren en het dak. De betonnen platen worden gedragen door stalen spanten. Alles blijft puur en in het zicht. Zo heb je veel minder materiaal en mankracht in de afbouwfase nodig. Wat nieuw is aan de woning van Jacqueline en Janniek is dat deze energieleverend is gebouwd.
Stalen skelet met prefab betonplaten. Dak en gevel bekleed met Ruukki metalen dakplaten.
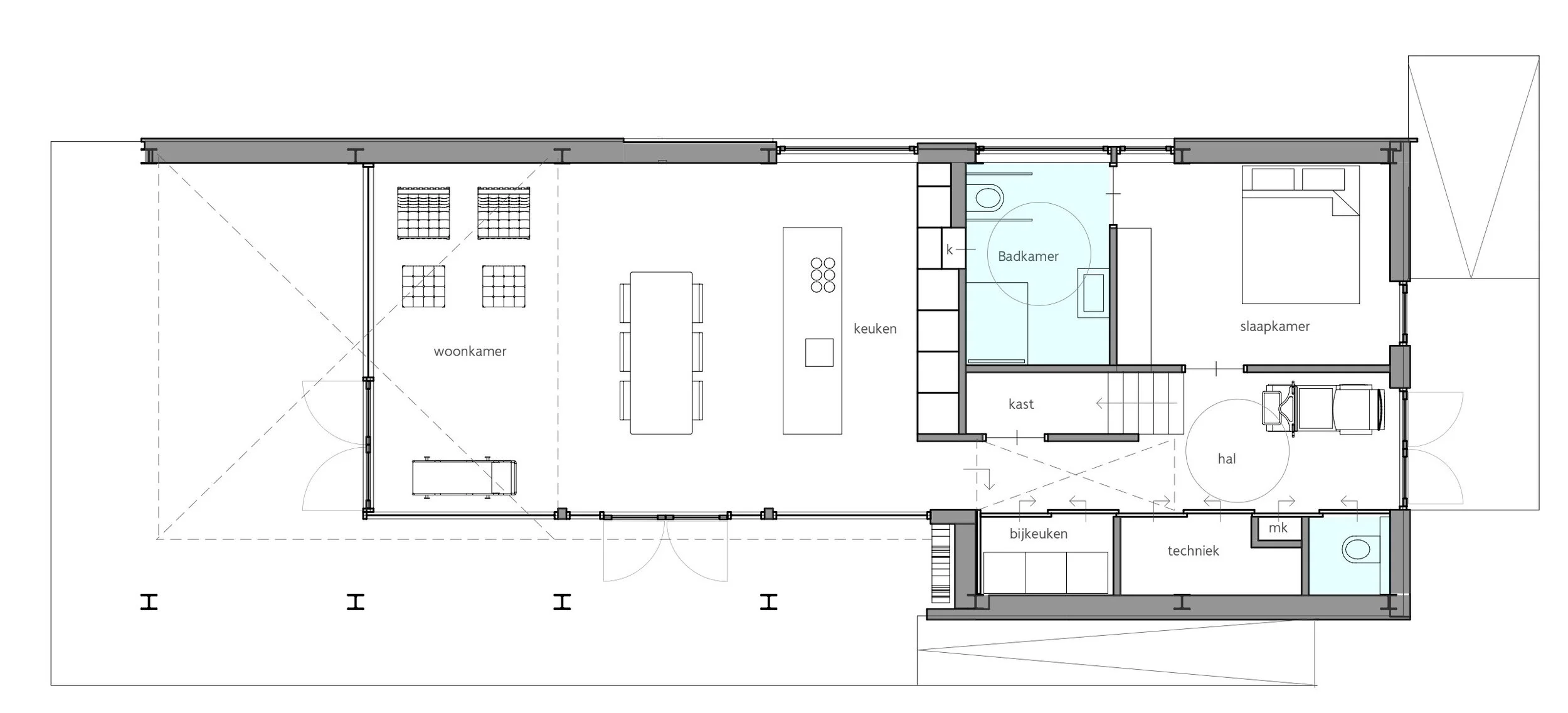
plattegrond
Energieneutraal bouwen
Janniek en Jacqueline vonden het heel boeiend om uit te zoeken hoe ze energieneutraal konden bouwen. De methode Ruwbouw = afbouw geeft de woning een eerlijk karakter en een hoge isolatiewaarde. Bovendien heb je minder bouwmaterialen nodig. Verder kozen Janniek en Jacqueline voor:
- een aardwarmtepomp voor verwarming en warm water. In de zomer kan de pomp ook koelen. De woning is ‘full electric’ en heeft geen gasaansluiting. 
- aluminium kozijnen met een hoge isolatiewaarde en tripel glas. 
- extra isolatiewaarde in de schil van de woning. Het betonnen gedeelte is gevuld met een laag van 24 cm isofloc isolatiemateriaal. Het houtskelet-gedeelte is met 28 cm dikke steenwol gevuld. 
- een balansventilatiesysteem dat zorgt voor verse lucht in de woning, warmte terugwint en de luchtvochtigheid reguleert. 
- 40 zonnepanelen in het dak. 
Op het naar het zuiden gerichte dakvlak van deze schuurwoning liggen 40 zonnepanelen.
 
           
        
      
     
             
             
             
             
            